Топка Zibi/P/BS/DECO (угловое стекло справа)
![]() |
Доставка Доставим по Москве и МО, а так же в любую точку России |
![]() |
Монтаж Наши специалисты проведут установку под ключ |
![]() |
Экономия Просто оставьте заявку и Вы получите самое выгодное предложение |
![]() |
Защита покупок Мы даем гарантию на все продукцию |
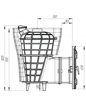
Характеристики
- Высота видимой части топки
- 461
- Мощность, кВт
- 12
- Наличие дымосборника
- топка с дымосборником
- Опции
- декоративное исполнение стекла, вторичный дожиг, встроенные ножки, система чистое стекло, подача воздуха извне
- Ширина видимой части топки, мм
- 751
- Материал каминной топки
- сталь
- Отапливаемая площадь, м3
- 300
- КПД, %
- 80
- Вес, кг
- 150
- Теплообменник
- Нет
- Способ открытия дверцы
- распашная
- Диаметр дымохода, мм
- 180
- Форма стекла и дверей
- Г-образная
- Вид топлива
- дрова и брикеты
- Футеровка
- термотек (termotec)
- Наличие зольника
- без зольника(подовое горение)
- Максимальная длина дров
- 400
- Материал изготовления топки
- сталь
- Присоединение дымохода
- поворотный
Описание
























































