Печь-камин Invicta BRADFORD антрацит
-
- Производитель: INVICTA (Франция)
- Доступность: На складе
- Код товара: 30500
- Длина: 580 см x Ширина: 730 см x Высота: 690 см
- Вес: 167 кг
237 992 р.
![]() |
Доставка Доставим по Москве и МО, а так же в любую точку России |
![]() |
Монтаж Наши специалисты проведут установку под ключ |
![]() |
Экономия Просто оставьте заявку и Вы получите самое выгодное предложение |
![]() |
Защита покупок Мы даем гарантию на все продукцию |
Характеристики
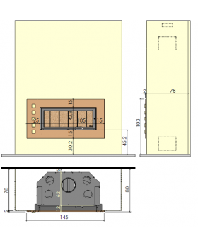
- Габариты (ВхШхГ)
- 690х730х613
- Варочная плита
- нет
- Водяной контур
- нет
- Духовой шкаф
- нет
- Материал печи
- чугун
- Мощность, кВт
- 9
- Поворотная
- нет
- Подача воздуха извне
- нет
- Стекло
- прямое
- Страна производитель
- Франция
- Цвет печи-камина
- Коричневый
- Место установки
- пристенный
- Объем помещения, м3
- 225
- Расположение в помещении
- пристенное
- Вес, кг
- 175
- Теплообменник
- нет
- Диаметр дымохода, мм
- 150
- Материал облицовки
- Чугун
- Футеровка
- Чугун
- Материал изготовления топки
- чугун
- Присоединение дымохода
- верхний/задний
Описание




































